产品介绍
不锈钢放料球阀FQ41F,反应釜放料球阀,变径放料阀,一体式放料球阀,是用于反应器,储罐和其它容器的底部排料,借助于阀门底部法兰焊接于储罐和其它容器的底部,消除工艺介质通常在容器出口的残留现象。
FQ41F不锈钢放料球阀两端法兰大小不等,一端为标准法兰,一端为与反应釜底放料孔配套的法兰,阀座与端面法兰距离近,物料滞留少,结构紧凑,密封性能优越,其启闭件球体与阀杆铸(锻)为一体,杜绝了由于压力变化引起阀杆冲击承压件内的可能性,从根本上保证了使用中的安全性。
FQ41F不锈钢放料球阀主要用于精细化工、制药、化工行业反应锅上,也可用在细软颗粒介质输送,采用PPL密封材料,更具耐磨,是牙膏行业真空制膏锅放料的最理想产品。
FQ41F不锈钢放料球阀性能规范
不锈钢放料球阀-反应釜放料球阀-FQ41F| 公称通径 | DN25~DN200 |
| 公称压力 | 1.6MPa~2.5MPa~4.0MPa |
| 适用温度 | -29ºC~+180ºC |
| 阀体材质 | 不锈钢CF8、CF8M、CF3、CF3M |
| 适用介质 | 水、液体、颗粒状颗粒等 |
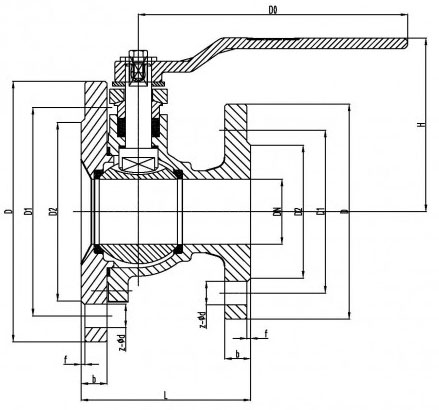
FQ41F不锈钢放料球阀外形结构尺寸
|
公称压力 PN(MPa) |
公称通径 DN(mm) |
主要尺寸(mm) |
参考重量 (kg) |
||||||||
| L | D | D1 | D2 | Z-φd | f | b | D0 | H | |||
| 1.0 | 25/50 | 125 | 115/140 | 85/110 | 65/90 | 4-14/4-14 | 3/3 | 17/17 | 180 | 105 | 6 |
| 32/65 | 135 | 140/160 | 100/130 | 78-110 | 4-18/4-14 | 3/3 | 19/17 | 180 | 120 | 7.5 | |
| 40/65 | 150 | 150/160 | 110/130 | 85/110 | 4-18/4-14 | 3/3 | 19/17 | 225 | 140 | 10 | |
| 40/80 | 150 | 150/190 | 110/150 | 85/125 | 4-18/4-14 | 3/3 | 19/19 | 225 | 140 | 10 | |
| 50/80 | 165 | 165/190 | 125/170 | 100/145 | 4-18/4-18 | 3/3 | 21/19 | 225 | 150 | 16 | |
| 50/100 | 165 | 165/210 | 125/170 | 100/145 | 4-18/4-18 | 3/3 | 21/19 | 225 | 150 | 16 | |
| 65/100 | 180 | 185/210 | 145/170 | 120/145 | 4-18/4-18 | 3/3 | 21/19 | 360 | 160 | 20.5 | |
| 65/125 | 180 | 185/240 | 145/200 | 120/175 | 4-18/4-18 | 3/4 | 21/20 | 360 | 160 | 20.5 | |
| 80/125 | 240 | 200/240 | 160/200 | 135/175 | 8-18/8-18 | 3/4 | 21/20 | 420 | 215 | 31 | |
| 80/125 | 240 | 200/265 | 160/225 | 135/200 | 8-18/8-18 | 3/4 | 21/22 | 420 | 215 | 31 | |
| 100/150 | 260 | 220/265 | 180/225 | 155/200 | 8-18/8-18 | 3/4 | 23/22 | 420 | 240 | 43 | |
| 100/200 | 260 | 220/320 | 180/280 | 155/255 | 8-18/8-18 | 3/4 | 23/24 | 420 | 240 | 43 | |
声明:本文中所有文字、数据、图片均只适用于参考。询价提供相关产品参数:产品名称、型号、口径、材质、介质、压力、温度、连接标准、数量等,如对产品有特殊要求,请在询价时一并提出。或者使用场合非常重要或环境比较复杂,请您尽量提供设计图纸和详细参数,由我们专业工程师为您审核选型。
感谢访问我司网站,如你对该产品还有任何疑问可致电我们,我们将为您提供优质的售前咨询服务。咨询手机:15002111058;电话:021-56051151。
更多产品






