ZCZH高温高压电磁阀是先导直动型的电磁阀,其通用介质范围较广,高温电磁阀可分别使用于水、轻油、重油、非腐蚀性气体及蒸汽等流体,如电站抽气管道疏水系统和蒸发器的排气系统中,高温电磁阀主要是对管道中的介质进行双位自动调节和远程控制。
ZCZH高温高压电磁阀用于各种中温、高温、常压、高压场合,适用于中高温热水、高温蒸汽、饱和蒸汽、过热蒸汽及导热油等管路的自动控制;广泛应用于窑炉设备、干燥设备、石油化工、生物制药、暖通空调、电镀涂装、橡塑机械、食品饮料、造纸、印染及电力矿业等行业,是自动化控制工程、项目改造及设备配套的首选产品。
ZCZH高温高压电磁阀工作原理:
电磁阀电磁铁通电时,连杆被提升,带动转轴转动,副阀打开。由于副阀被开启,主阀阀杯上部的压力流体被排出,因此主阀阀杯下部的压力比上部高,这样下部的压力将主阀阀杯向上推开。主阀被打开后,上下压力相等,阀杯在电磁力、上下压力作用下,置于平衡状态,阀门开通。断电时在衔铁自重及返回弹簧作用下,关下副阀,副阀关闭后,随之主阀阀杯上部的压力升高而将主阀阀杯压下,达到断流密封作用,阀门关闭。
ZCZH高温高压电磁阀特点:
1、特殊场合可持续长时间通电,耐高温,采用全金属密封,介质流体温度可达450℃
2、不同的使用介质,采用针对性的密封, 更加提高电磁阀合理性
3、采用新颖巧妙的阀芯结构及安装散热装置,使结构更加紧凑,重量是同类产品的三分之一
4、耐磨,阀杯和导向套间巧妙地利用流体的润滑作用,减少磨损。采用不锈钢活塞结构,阀芯磨损可自动补偿,更加提高电磁阀的寿命和可靠性,可持续频繁工作。采用杠杆原理保证线圈和阀体彻底隔离。
5、介质流体最高压力可分别提供4.0Mpa;
ZCZH高温高压电磁阀主要性能规范
| 介质温度℃ | ZCZG | ≤250 | |||||||
| ZCZH | ≤400 | ||||||||
| 公称压力(MPa) | ZCZG | 2.5 | |||||||
| ZCZH | 4.0 | ||||||||
| 工作压差(MPa) | ZCZG | 0.1-2.5 | |||||||
| ZCZH | 0.1-4.0 | ||||||||
| 公称通径(MPa) | 15 | 20 | 25 | 32 | 40 | 50 | 65 | 80 | 100 |
| 功耗 | 130VA | 480VA | |||||||
| 电源电压 | AC220V DC 24V 其余规格可作特殊订货 | ||||||||
| 额定流量系数(KV) | 3.8 | 7.4 | 10.3 | 18.8 | 25.7 | 41 | 58 | 85 | 154 |
| 泄漏量(ml/min) | 按JB/T7352-94·F规定 | ||||||||
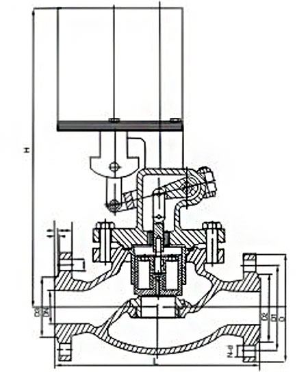
ZCZH高温高压电磁阀外形结构尺寸
| DN | L | H | D | D1 | D2 | D3 | b | f1 | f | n-d |
| 10 | 160 | 298 | 90 | 60 | 34 | 41 | 16 | 4 | 2 | 4-Ø14 |
| 15 | 160 | 298 | 95 | 65 | 39 | 45 | 16 | 4 | 2 | 4-Ø14 |
| 20 | 200 | 304 | 105 | 75 | 50 | 55 | 16 | 4 | 2 | 4-Ø14 |
| 25 | 200 | 304 | 115 | 85 | 57 | 65 | 16 | 4 | 2 | 4-Ø14 |
| 32 | 200 | 314 | 140 | 100 | 65 | 78 | 18 | 4 | 2 | 4-Ø18 |
| 40 | 260 | 460 | 150 | 110 | 75 | 85 | 18 | 4 | 3 | 4-Ø18 |
| 50 | 300 | 460 | 165 | 125 | 87 | 100 | 20 | 4 | 3 | 4-Ø18 |
| 65 | 290 | 433 | 185 | 145 | 109 | 120 | 22 | 4 | 3 | 8-Ø18 |
| 80 | 310 | 433 | 200 | 160 | 120 | 135 | 22 | 4 | 3 | 8-Ø18 |
| 100 | 350 | 461 | 235 | 190 | 149 | 160 | 24 | 4.5 | 3 | 8-Ø22 |
声明:本文中所有文字、数据、图片均只适用于参考。询价提供相关产品参数:产品名称、型号、口径、材质、介质、压力、温度、连接标准、数量等,如对产品有特殊要求,请在询价时一并提出。或者使用场合非常重要或环境比较复杂,请您尽量提供设计图纸和详细参数,由我们专业工程师为您审核选型。
感谢访问我司网站,如你对该产品还有任何疑问可致电我们,我们将为您提供优质的售前咨询服务。咨询手机:15002111058;电话:021-56051151。






