D981X卫生级蝶阀/电动快装蝶阀/电动卫生级快装蝶阀/不锈钢食品级卡箍卡盘式快接蝶阀/电动蝶阀 电动卫生级快装蝶阀阀体流道经过精密标准电子抛光和除菌处理,光滑表面确保清洁,无介质积存区域,不会产生潜在的污染。快速拆装阀,使阀门打开和维修快捷容易,使过程停机时间缩短。
D981X电动卫生级快装蝶阀由卫生级蝶阀和精小型电动执行器组成,通过执行器自动操作也可由手柄手动操作。手柄控制阀门开和关闭的位置,当然也可以调节到其他间的位置。执行器把活塞的轴向运动转换成90度旋转运动,传输给蝶阀。电动快装蝶阀具有结构紧凑、装拆方便等优点。可实现对介质切断或流量的调节。广泛应用于如食品、制药、化妆品、洁净蒸汽、酒类、饮料、生化工业过程控制场合。
D981X电动卫生级快装蝶阀主要性能规范
| 公称通径 | φ25、φ32、φ38、φ51、φ63、φ76、φ89、φ102(MM) |
| 公称压力 | PN1.0、1.6MPa |
| 阀体材质 | 不锈钢304、316、316L |
| 密封材料 | 硅胶、氟橡胶 |
| 介质温度 | ≤150℃ |
| 适用介质 | 食品、药品、酒类,乳类、饮料 |
| 连接方式 | 快装型、螺纹型、焊接型 |
| 控制类型 |
开关型、无源触点型、阀位信号反馈型、智能调节型 智能调节型:输入信号4-20mA,1-5V,0-10V;输出信号:4-20mA,1-5V,0-10V |
| 电源电压 | DC24V、DC220V、AC110V、AC220V、AC380V |
注意:
1、请务必接对电源相序,以免阀门或执行器损坏。
2、通电时禁止手动操作。
3、户外使用时给电动执行器外加防护盖子,防止老化。
4、开盖后应拧紧密螺丝,防止进水或灰尘进入电动执行器内部。
5、请不要安装在易爆气体周围,如需防爆订货时请说明。
6、请确定输入电压和配线接点是否正确。
7、禁止超负荷使用电动执行器。
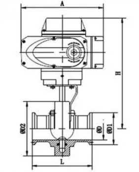
D981X电动卫生级快装蝶阀外形结构尺寸
| 规格 | ΦD | ΦD1 | ΦD2 | L | A | H |
| Φ25 | 21 | 50.5 | 78 | 66 |
160 |
194 |
| Φ32 | 29 | 50.5 | 78 | 66 | 160 | 194 |
| Φ38 | 35 | 50.5 | 86 | 70 | 160 | 198 |
| Φ51 | 47 | 64 | 102 | 76 | 160 | 202 |
| Φ63 | 59 | 77.5 | 113 | 98 | 198 | 240 |
| Φ76 | 72 | 91 | 128 | 98 | 198 | 246 |
| Φ89 |
80 |
106 | 139 | 102 | 198 | 250 |
| Φ102 | 97 | 119 | 154 | 106 | 255 | 287 |
声明:本文中所有文字、数据、图片均只适用于参考。询价提供相关产品参数:产品名称、型号、口径、材质、介质、压力、温度、连接标准、数量等,如对产品有特殊要求,请在询价时一并提出。或者使用场合非常重要或环境比较复杂,请您尽量提供设计图纸和详细参数,由我们专业工程师为您审核选型。
感谢访问我司网站,如你对该产品还有任何疑问可致电我们,我们将为您提供优质的售前咨询服务。咨询手机:15002111058;电话:021-56051151。






