883F型倒置桶蒸汽疏水阀系列说明书
一、用途
倒置桶式蒸汽疏水阀的开启和关闭是根据凝结水和蒸汽的密度差来动作的,其动作准确,可靠。
此蒸汽疏水阀用于石油、化工、电力、纺织印染、医疗、医药等行业的各种蒸汽加热设备、蒸汽管网
和低过热蒸汽工况。883F倒置桶蒸汽疏水阀能迅速地排除凝结水,有效地阻止蒸汽泄露。
二、特点
1、即能连续又能间歇排放饱和凝结水加热设备不会有水积聚,从而获得最离的热效率。
2、耐水击侧置桶结构不会因水击而遭到损坏,使用寿命长。
3、排空气性能好倒吊桶上设有溢出排气孔,可有效地预防蒸汽气锁和空气气堵。
4、允许背压高背压率达 75%。
5、维修方便内部零件采用不锈钢制造,均安装在阀盖上,并设有过滤网装置,日常维护方便。
三、工作原理
四、安装使用注意事项
1、安装前必须用压力气体吹扫管线,清除污垢,杂物。
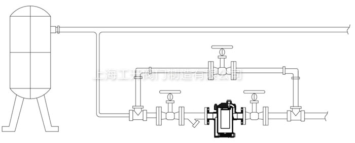
2、本阀应安装在蒸汽管线路较低的位置,阀前应装截止阀、过滤器,同时安装傍通阀。
3、安装方向,让阀体上的箭头指向与管道内流体方向一致(阀体上箭头指向为流体出口端)。
4、手动排空装置,如阀门在工作过程中有不正常状态,把排空气装置盖上的螺塞松开,使阀门内的空气排出,然后把螺塞旋紧,使阀门恢复正常工作。
5、如发生漏气现象,可能阀体内污物太多,应打开阀下螺孔进行吹汽,维修时,先关闭疏水阀前的截止阀,再拆开阀盖检阀芯。阀座,并清除阀内污物。
6、为了防止污物进入疏水阀,根据用户各自管道情况,定期进行清除网前的污物使疏水阀正常工作。
五、安装示意图
感谢访问上海工开阀门 网站,如你对该产品还有任何疑问可致电我们,我们将为您提供优质的售前咨询服务。咨询手机:15002111058;电话:021-56051151。
- 上一篇:什么是水锤现象?如何避免水锤效应? 2024/4/1
- 下一篇:Modbus slave模拟子设备接入DTU设备时平台配置 2024/4/1


