产品介绍
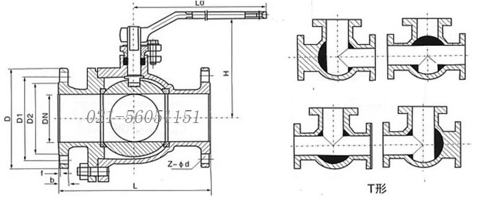
三通球阀可分为L形和T形,L形(Q44F/Q44H)三通球阀用于介质流向的切换,能使相互垂直的两个通道连接;T形(Q45F/Q45H)三通球阀用于介质分流、合流及流向切换。T形三通可以使三个通道相互连通或使其中的两个通道连通。
三通球阀一般采用两阀座结构,亦可根据用户要求采用四阀座结构。
Q45F/Q45H三通T型球阀主要能使三条正交的管道相互联通和切断第三条通道,起分流、合流作用。
T型三通球阀主要零外形
声明:本文中所有文字、数据、图片均只适用于参考。询价提供相关产品参数:产品名称、型号、口径、材质、介质、压力、温度、连接标准、数量等,如对产品有特殊要求,请在询价时一并提出。或者使用场合非常重要或环境比较复杂,请您尽量提供设计图纸和详细参数,由我们专业工程师为您审核选型。
感谢访问我司网站,如你对该产品还有任何疑问可致电我们,我们将为您提供优质的售前咨询服务。咨询手机:15002111058;电话:021-56051151。
更多产品






