产品介绍
YJ41W不锈钢氧气专用截止阀是根据氧气管网运行特点以及考虑氧气介质的易燃易爆的特性,以安全可靠和性能为设计原则,并参照《氧气安全规程》的规定而设计的确保氧气管网安全运行的阀门。
氧气管线阀门,都要进行脱脂处理。因为氧气与油脂接触时,会发生强烈的氧化反应,发出大量的热,温度迅速上升,造成管线压力上升,引起燃烧危险。
YJ41W氧气截止阀在制造时采用严格的禁油措施,并且所有零件在安装前均进行严格的脱脂处理。所有阀门法兰端均设有导电螺孔,以防静电。阀门外露部位有保护措施,防止尘土和油类污染。
YJ41W不锈钢氧气专用截止阀主要性能参数
| 产品名称: | YJ41W不锈钢氧气专用截止阀 | 驱动方式: | 手动 |
| 连接方式: | 法兰连接 | 公称通径: | DN15~DN800 |
| 适用介质: | 氧气/液氧 | 公称压力: | PN10~PN40 |
| 适用温度: | t≤200℃ | 法兰标准: | JB/T79;GB/T9113;HG/T20592 |
| 设计标准: | GB/T12235;JB/T10530 | 测试标准: | JB/T9092;GB/T26480;GB/T13927 |
| 阀体材质: | 不锈钢 | 阀杆 | 铬镍不锈钢 |
| 阀盖、阀瓣 | 铸铬镍钛不锈钢 | 阀杆螺母 | 青铜 |
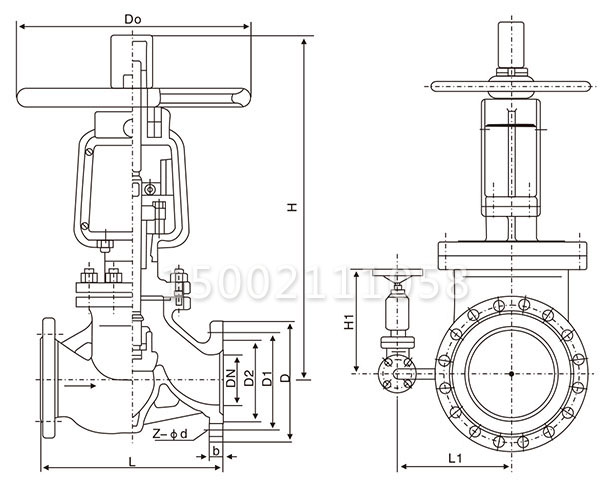
YJ41W不锈钢氧气专用截止阀主要零外形及连接尺寸
| 通径 | L | D | D1 | D2 | b | z-d | D0 | H |
| 15 | 130 | 95 | 65 | 45 | 16 | 4-14 | 100 | 190 |
| 20 | 150 | 105 | 75 | 55 | 16 | 4-14 | 100 | 213 |
| 25 | 160 | 115 | 85 | 65 | 16 | 4-14 | 125 | 236 |
| 32 | 180 | 135 | 100 | 78 | 18 | 4-18 | 182 | 312 |
| 40 | 200 | 145 | 115 | 85 | 18 | 4-18 | 160 | 328 |
| 50 | 230 | 160 | 125 | 100 | 20 | 4-18 | 320 | 450 |
| 65 | 290 | 180 | 145 | 120 | 22 | 8-18 | 360 | 530 |
| 80 | 310 | 195 | 160 | 135 | 22 | 8-18 | 400 | 560 |
| 100 | 350 | 230 | 190 | 160 | 24 | 8-23 | 450 | 618 |
| 125 | 400 | 270 | 220 | 188 | 28 | 8-25 | 450 | 675 |
| 150 | 480 | 300 | 250 | 218 | 30 | 8-25 | 560 | 743 |
| 200 | 600 | 360 | 310 | 278 | 34 | 12-25 | 640 | 850 |
| 250 | 650 | 425 | 370 | 332 | 36 | 12-30 | 720 | 975 |
| 300 | 750 | 485 | 430 | 390 | 40 | 16-30 | 800 | 1115 |
声明:本文中所有文字、数据、图片均只适用于参考。询价提供相关产品参数:产品名称、型号、口径、材质、介质、压力、温度、连接标准、数量等,如对产品有特殊要求,请在询价时一并提出。或者使用场合非常重要或环境比较复杂,请您尽量提供设计图纸和详细参数,由我们专业工程师为您审核选型。
感谢访问我司网站,如你对该产品还有任何疑问可致电我们,我们将为您提供优质的售前咨询服务。咨询手机:15002111058;电话:021-56051151。
更多产品






