产品介绍
ZZLP自力式流量调节阀是是一个新的调节阀种类,相对于手动调节阀,它的优点是能够自动调节。相对于电动调节阀,它的优点是不需要外部动力,应用实践证明,在闭式水循环系统(如热水供暖系统,空调冷冻系统)中,正确使用这种阀门,可以很方便地实现系统的流量分配;可以实现系统的动态平衡;可以大大简化系统的调试工作;可以稳定泵的工作状态等。因此,自力式流量调节阀在供热空调工程中有着广阔的应用前景。
ZZLP自力式流量调节阀是在阀的进出口压差变化的情况下,维持通过阀门的流量恒定,从而维持与之串联的被控对象(如一个环路,一个用户,一台设备等,下同)的流量恒定,自力式流量控制阀的名称较多,如自力式流量平衡阀,定流量阀,自平衡阀,动态流量平衡阀等,各种类型的自力式流量调节阀,结构各有相异,但工作原理相似。
ZZLP自力式流量调节阀技术参数
| 公称通径DN | 15 | 20 | 25 | 32 | 40 | 50 | 65 | 80 | 100 | 125 | 150 | 200 | 250 | |
| 额定流量系数Kvs | 4 | 6.3 | 8 | 16 | 20 | 32 | 50 | 80 | 125 | 160 | 280 | 320 | 400 | |
| 有效压力下最大流量(m3/h) | 0.02MPa | 1.5 | 2.5 | 3.5 | 5.5 | 9.0 | 14 | 22 | 36 | 55 | 70 | 125 | 180 | 250 |
| 0.05 MPa | 2.5 | 3.5 | 5.5 | 9.0 | 12 | 22 | 36 | 55 | 85 | 110 | 180 | - | - | |
| 噪音衡量系数Z值 | 0.6 | 0.6 | 0.6 | 0.55 | 0.55 | 0.5 | 0.5 | 0.45 | 0.4 | 0.35 | 0.3 | 0.2 | 0.2 | |
| 允许压差 | PN16 | 1.6 | 1.5 | 1.2 | 1.0 | |||||||||
| PN40 | 2.0 | |||||||||||||
| 阀盖形式 | 标准型-17~+450℃ | |||||||||||||
| 压盖型式 | 螺栓压紧式 | |||||||||||||
| 密封填料 | V型聚四氟乙烯填料、含浸聚四氟乙烯石棉填料、石棉纺织填料、石墨填料 | |||||||||||||
| 阀芯形式 | 单座、套筒型阀芯 | |||||||||||||
| 流量特性 | 线性 | |||||||||||||
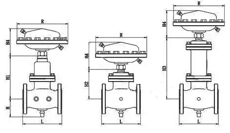
ZZLP自力式流量调节阀结构尺寸
| 公称通径mm | 15 | 20 | 25 | 32 | 40 | 50 | 65 | 80 | 100 | 125 | 150 | 200 | 250 |
| L | 130 | 150 | 160 | 180 | 200 | 230 | 290 | 310 | 350 | 400 | 480 | 600 | 730 |
| H | 50 | 52.5 | 57.5 | 75 | 75 | 85.5 | 92.5 | 100 | 110 | 142.5 | 158 | 170 | 640 |
| H1 | 212 | 212 | 238 | 238 | 240 | 240 | 275 | 275 | 380 | 380 | 326 | 354 | 404 |
| H2 | - | - | - | - | - | - | - | - | - | - | 326 | 354 | 404 |
| H3 | - | - | - | - | - | - | - | - | - | - | 630 | 855 | 1205 |
| H4 | 150 | ||||||||||||
| R | 263 | ||||||||||||
声明:本文中所有文字、数据、图片均只适用于参考。询价提供相关产品参数:产品名称、型号、口径、材质、介质、压力、温度、连接标准、数量等,如对产品有特殊要求,请在询价时一并提出。或者使用场合非常重要或环境比较复杂,请您尽量提供设计图纸和详细参数,由我们专业工程师为您审核选型。
感谢访问我司网站,如你对该产品还有任何疑问可致电我们,我们将为您提供优质的售前咨询服务。咨询手机:15002111058;电话:021-56051151。
更多产品






