PZ41H排渣闸阀是基于法兰闸阀演变而成的一种用于排除灰渣水混合物的阀门。适用于公称压力PN1.6~6.4MPa,工作温度0~100℃的火力电站水利系统及水利工程的灰浆排放系统管路上,切断或接通管路中灰水混合物,渣水混合物。
工作原理:PZ41H排渣闸阀过流部件材质跟普通闸阀不一样,耐磨性要好。另外结构上也不一样,不能存渣,一般在出口底部设有排渣沟,利于排渣。采用明杆楔式刚性单闸板,阀座密封面材料为硬质合金(碳钢 钴铬钨),适用于电厂、冶金和水泥等行业的煤粉、灰渣等物料的输送管线,起到截止和通流的作用。
排渣闸阀特点:
1、采用中法兰螺栓连接,支管两端为法兰连接或对焊连接
2、启闭件采用半密封副强制密封,性能优良
3、密封副材料为耐磨陶瓷或耐磨合金,耐磨性强,耐磨性强、耐用冲蚀、耐擦伤、摩擦力小、密封可靠
4、阀体出口流道结型合理,不存渣,启闭灵活,不卡阻
5、阀杆经调质和表面氮化处理,有良好的搞腐蚀性,抗擦伤性和耐磨性
6、中大口径设置滚动轴承,启闭轻松。
| 工作压力(MPa) | 1.0—1.6MPa | |
| 适用温度(℃) | ≤200 | |
| 适用介质 |
灰渣水混合物,渣水比≥1:15,最大类径≤50mm |
|
| 适用范围 |
火力发电厂干灰系统、仓泵出料输送 化工、冶金、造纸、制药等行业中散状物料输送系统 |
|
| 零部件材质 | 阀体 | WCB |
| 阀板 | WCB | |
| 阀座密封面 | 合金钢 | |
| 阀杆 | 2Cr13 | |
| 阀盖 | WCB | |
| 密封填料 | 柔性石墨 | |
| 阀杆螺母 | 铸铝青铜 | |
| 型号 |
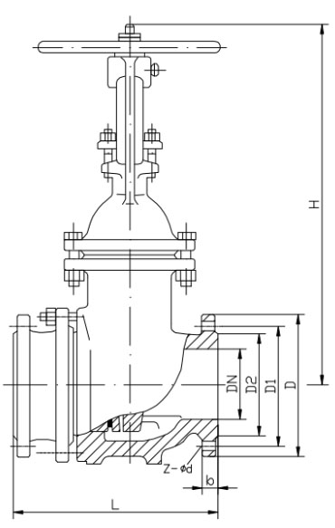
公称通径 DN/mm |
主要尺寸 | ||||||
| L | D | D1 | D2 | Z-φd | H | |||
|
PZ41H-10C PZ41H-16C |
50 | 250 | 165 | 125 | 102 | 20 | 4-φ18 | 335 |
| 80 | 280 | 200 | 150 | 133 | 22 | 8-φ18 | 510 | |
| 100 | 300 | 220 | 180 | 150 | 24 | 8-φ18 | 685 | |
| 150 | 350 | 285 | 240 | 212 | 28 | 8-φ22 | 790 | |
| 200 | 400 | 340 | 295 | 268 | 30 | 12-φ22 | 885 | |
| 250 | 450 | 405 | 355 | 320 | 32 | 12-φ26 | 1015 | |
| 300 | 500 | 460 | 41O | 370 | 34 | 12-φ26 | 1190 | |
| 350 | 550 | 520 | 470 | 430 | 38 | 16-φ26 | 1350 | |
| 400 | 600 | 580 | 525 | 482 | 40 | 16-φ30 | 1460 | |
| 500 | 700 | 715 | 650 | 585 | 46 | 20-φ33 | 1820 | |
声明:本文中所有文字、数据、图片均只适用于参考。询价提供相关产品参数:产品名称、型号、口径、材质、介质、压力、温度、连接标准、数量等,如对产品有特殊要求,请在询价时一并提出。或者使用场合非常重要或环境比较复杂,请您尽量提供设计图纸和详细参数,由我们专业工程师为您审核选型。
感谢访问我司网站,如你对该产品还有任何疑问可致电我们,我们将为您提供优质的售前咨询服务。咨询手机:15002111058;电话:021-56051151。






