EG41J、EG41F46 British standard lined rubber diaphragm valve is designed for controlling non corrosive or generally corrosive media. The surface of the valve body cavity is unlined or covered with various rubber options, suitable for different working temperatures and fluid pipelines. The opening and closing of the rubber lined diaphragm valve is achieved by rotating the handwheel.
This valve is marked with a visible display color on the upper end of the valve cover to indicate the opening and closing position of the valve, indicating the opening and closing stroke of the valve. When the handwheel is placed clockwise, it moves down and the valve disc drives the diaphragm to descend, cutting off the passage; On the contrary, the valve will open and the color will be revealed.
Applicable medium:
Except for strong oxidants such as chromic acid, concentrated acid, hydrogen peroxide, and organic solvents, 50% fluorosilicic acid, 30%, 50%, 85% phosphoric acid, alkali, salt, metal plating solution, sodium hydroxide, potassium hydroxide, neutral salt solution, 10% sodium hydroxide, wet, most alcohols, organic acids and aldehydes, cement, lime slurry, vegetable oil, elemental gases, ethers, ketones, esters, desalinated water, purified water and other media;
Applicable temperature: ≤ 85 ℃, ≤ 100 ℃, ≤ 120 ℃, ≤ 150 ℃ (according to lining and diaphragm materials)
EG41J/F46 Manual British standard diaphragm valve main component materials
| Part | Materials |
| Body | WCB,304 |
| Bonnet | Carbon steel, stainless steel |
| Lining | Unlined,fluoroplastics |
| Diaphragm | Fluoroplastics |
| Valve petal | Stainless steel |
| Stem | 304,45# |
|
|
|
| Handwheel | Cast steel |
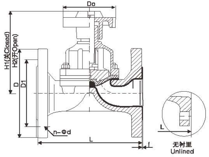
EG41J/F46 Manual British standard diaphragm valve main shape and connection dimensions
| Nominal diameter | Nominal pressure | Working pressure | L | D | D1 | n - φd | F | H1 | H2 | D0 |
Weight (kg) |
| DN | Mpa | Mpa | (mm) | (mm) | (mm) | (mm) | (mm) | (mm) | (mm) | (mm) | |
| 15 | 1.6 | 1. 0 | 108 | 95 | 65 | 4--14 | 2 | 90 | 99 | 66 | 2 |
| 20 | 117 | 105 | 75 | 4--14 | 2 | 93 | 103 | 66 | 3 | ||
| 25 | 127 | 115 | 85 | 4--14 | 2 | 100 | 112 | 66 | 4 | ||
| 32 | 146 | 140 | 100 | 4--18 | 2 | 127 | 144 | 96 | 6.5 | ||
| 40 | 159 | 150 | 110 | 4--18 | 2 | 136 | 156 | 96 | 7.5 | ||
| 50 | 190 | 165 | 125 | 4--18 | 2 | 151 | 177 | 118 | 10 | ||
| 65 | 1.0 | 216 | 185 | 145 | 4--18 | 2 | 183 | 213 | 165 | 16 | |
| 80 | 254 | 200 | 160 | 4--18 | 2 | 198 | 273 | 230 | 23.5 | ||
| 100 | 305 | 220 | 180 | 8--18 | 2 | 266 | 320 | 280 | 34 | ||
| 125 | 356 | 250 | 210 | 8--18 | 3 | 319 | 386 | 280 | 44 | ||
| 150 | 406 | 285 | 240 | 8--22 | 3 | 380 | 453 | 368 | 67.5 | ||
| 200 | 1.0 | 0.6 | 521 | 340 | 295 | 8--22 | 3 | 506 | 626 | 400 | 141.5 |
| 250 | 635 | 395 | 350 | 12--22 | 5 | 598 | 734 | 500 | 229 | ||
| 300 | 0.4 | 749 | 445 | 400 | 12--22 | 5 | 698 | 778 | 560 | 321 | |
| 350 | 787 | 505 | 460 | 16--22 | 5 | 723 | 883 | 560 | 360 | ||
| 400 | 0.25 | 914 | 565 | 515 | 16--26 | 5 | 868 | 1078 | 640 | 584 |






